Leilighet på Bali
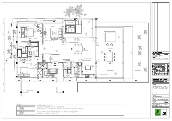
Leiligheten startet som et nytt påbygg på eksiterende bygg. Prosjektet ble fulgt og påbegynt fra starten, i tett dialog med arkitekt og prosjektleder. Sammen med arkitekten og oppdragsgiver, rådet SDesign til arealdisponering, øvrig design, kjøkken, baderom, garderobesystem, møblering og belysning.
Det var viktig for kunden at store vindusflater skulle slippe lyset og naturen inn i leiligheten for å skape en åpen atmosfære, samtidig kunne skjerme for sollyset ved behov. Hvite lystette gardiner på motor ble derfor lagt til rette i soverom og TV. Stuen.
Det ble opprettet 2 store soverom med hvert sitt baderom, i tillegg til et lite gjesterom med eget baderom/ vaskerom som også skulle fungere som hushjelpens rom. Inngangsparti, TV. Stue, spisestue og kjøkken ble bestemt å gå i ett og terskelfritt. I tillegg ble det lagt vekt på etablering av to store verandaer. Den minste som frokostareal, bibliotek med Jacuzzi/ spa areal. Den største verandaen på over 70 m2 ønsket oppdragsgiver skulle benyttes som en forlengelse av stuen, med egen sone til Day bed, spisestue og oppholdsrom. For å mykne på opplevelsen, var taket, dekket med alangalang/ strå/ blader som var flettet.
Ettersom flere av sonene var ønsket å gå i ett, ble belysningen viktig for å etablere soner. I taket ble det prosjektert en blanding av indirekte belysning soner og spotter, samt taklampe over spisebord. I tillegg til takbelysning ble den kombinert med stå og bordlamper.
Prosjektet ble en suksess og kunden meget fornøyd.

